Guide Price
£550,000
7 bedroom Terraced House for sale
Hampden Road, Brighton, BN2 9TN
Key Features
Full Details
Located on Hampden Road in the heart of Hanover. The open green spaces of The Level are just moments away, while the North Laine district can be reached on foot, offering a wide selection of independent shops, cafés and restaurants. Further amenities can be found on Lewes Road, including supermarkets, pubs and convenience stores, and Brighton mainline railway station is just under a mile away.
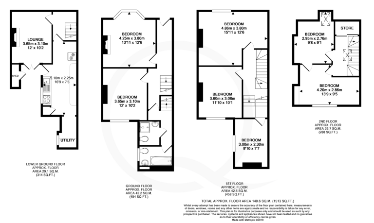
The property itself is in good condition throughout and comprises five double bedrooms and two well-sized single bedrooms. The accommodation is arranged over four floors, giving the house a spacious feel with plenty of separation between rooms.
On the ground floor there is a fitted kitchen with breakfast bar and dining space, along with a separate lounge providing a comfortable communal area. The house also benefits from a bathroom and an additional shower room, helping to make the layout practical for multiple occupants, however the property is easily convertable back to a family home.
In The Know…
Area: Hanover
Council Tax: C
EPC Rating: D 67
Floor Area: (approx.) 1513sq ft
Tenure: Freehold
Station: Brighton (0.9 miles) London Road (0.8 miles)
Bus Stop: De Montfort Road (276 ft)
Parking: Resident on-street parking Zone V
Primary School: Downs Infant and Junior (0.9 mile)
Secondary School: Varndean (1.7 miles) /Dorothy Stringer (1.9 miles)
Local shop: Food & Wine Stores (0.1 mile)
Supermarket: Sainsbury’s Lewes Road (0.4 mile)
Local Gems: The Wellington,
*As provided by the vendor. All details should be checked and confirmed by your conveyancer.
Enquiry Form
"*" indicates required fields
















